Consulenze Immobiliari
Via G. Donizetti, 36
20122  Milano
Tel. 02 76.02.37.64

Contatti :
C.E.: C - I.P.E.: 228,99 kwh/mqa
Via G. Serbelloni ,7
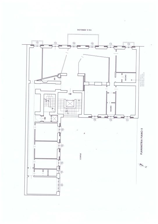
Ufficio in affitto  all'interno di un elegante palazzo liberty dei primi del novecento. Situato al secondo piano, l'ufficio offre una superficie di 370 mq e dispone di due balconi e una terrazza. La distribuzione interna comprende un ampio salone diviso da pareti in vetro, sette uffici, una cucina, tre bagni e due ingressi. I servizi includono riscaldamento centralizzato, acqua calda e aria condizionata autonomi.
La struttura č dotata di due ascensori e di un servizio di portineria.
Il canone annuo č di 190.000,00 € e le spese ammontano a circa 19.000,00 € salvo conguaglio oltre a IVA e al rimborso IMU
di € 18.001,96
=
androne 1

androne 1

androne 3

androne 3

androne 6

androne 6

androne cancelletto 1

androne cancelletto 1

ingresso 2

ingresso 2

ingresso

ingresso

corridoio

corridoio

corridoio retro

corridoio retro

ufficio principale

ufficio principale

ufficio 1

ufficio 1

ufficio 2

ufficio 2

ufficio 3 scatole

ufficio 3 scatole

ufficio 3

ufficio 3

ufficio 4

ufficio 4

ufficio 5

ufficio 5

sala riunioni 1

sala riunioni 1

sala riunioni 1-2

sala riunioni 1-2

sala riunioni 2

sala riunioni 2

sala riunioni 2-2

sala riunioni 2-2

sala riunioni 2-3

sala riunioni 2-3

cucina

cucina

bagno 3

bagno 3

bagno 1

bagno 1

bagno 2

bagno 2

terrazzo 2

terrazzo 2

terrazzo

terrazzo

planimetria serbelloni secondo piano

planimetria serbelloni secondo piano

Riprese interattive
Disponibile dal 1° giugno e visitabile previo appuntamento dal lunedě al giovedě, dalle 9,00 alle 17,30.
Ingresso
Reception
Sala riunioni 1-1
Sala riunioni 1-2
Sala riunioni 2.1
Sala riunioni 2-2
Sale riunioni
Ufficio 1
Ufficio 2
Ufficio 3
Ufficio 4
Ufficio 5
Ufficio 6
Corridoio 1
Corridoio 2
Passaggio
Cucina
Terrazzo
Bagno 1
Bagno 2
Bagno 3